ID №: 3702153
2-комнатная квартира в Преображенском
ДОМ СДАН. КВАРТИРА ПОДХОДИТ ПОД СЕМЕЙНУЮ ИПОТЕКУ.
Новый район город «Преображенский» просто создан для комфортной жизни: развитая инфраструктура, пешеходные бульвары для прогулок, закрытые безопасные дворы. Район расположен одновременно в центре Взлётки и при этом немного в стороне, в атмосфере тишины и спокойствия.
Предлагаем вашему вниманию просторную двухкомнатную квартиру в сдающемся доме премиум-класса. Квартира определенно заслуживает вашего внимания: просторные комнаты, высокие потолки, два санузла, последний этаж с видом на Дрокинскую гору и окрестности Красноярска.
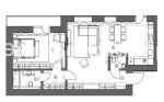
Квартира продается в отделке «белый куб», на фото представлены примеры красивой и комфортной реализации пространства от профессионального дизайнера.
Особенности:
- высокие потолки и просторные комнаты для тех, кому важно ощущение пространства и воздуха;
- благодаря большим окнам квартира очень светлая;
- прекрасный вид на окрестности Красноярска;
- окна выходят на прилегающую к дому территорию, на которой запланировано строительство праздничной площади;
- существующая планировка даёт много возможностей для организации пространства под свои потребности;
- отделка «белый куб» - чистый лист для ваших идей.
Немного цифр и полезная информация:
- площадь квартиры 76,5 кв. м;
- высота потолков 3,6 м;
- последний восьмой этаж;
- две большие лоджии;
- два санузла;
- прямо рядом с домом два детских сада и новая современная школа;
- один взрослый собственник.
Профессиональное и, местами, персональное мнение:
Комментирует Ольга Лаврентьева, риелтор АН «Элитный Красноярск»: «О преимуществах микрорайона «Преображенский» я могу говорить бесконечно. Сейчас хочется обратить внимание именно на особенности этой квартиры. Высокие потолки, большие окна, просторные комнаты с лоджиями, открывающийся из окон вид на окрестности Красноярска определенно выделяют ее из других предложений в данном районе. Отличная возможность создать жилище вашей мечты».
Все объекты сайта "Элитный Красноярск" продаются без оплаты услуг покупателем.
Выбрать дату просмотра
Контакты





















